Your privacy is important to us. This website uses cookies to enhance user experience and to analyze performance and traffic on our website. By using this website, you acknowledge the real-time collection, storage, use, and disclosure of information on your device or provided by you (such as mouse movements and clicks). We may disclose such information about your use of our website with our social media, advertising and analytics partners. Visit our Privacy Policy and California Privacy Disclosure for more information on such sharing.

Log In

Our Brands

Helpful Tools

Search

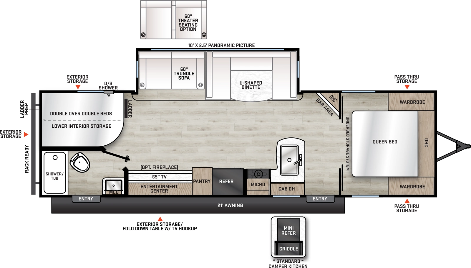
Hitch Weight
918 lb.
GVWR
9,348 lb.
UVW
7,348 lb.
CCC
2,000 lb.
Exterior Length
33' 6"
Exterior Height
11' 3"
Exterior Width
96"
Fresh Water
38 gal.
Gray Water
74 gal.
Black Water
29 gal.
Awning Size
21'