Your privacy is important to us. This website uses cookies to enhance user experience and to analyze performance and traffic on our website. By using this website, you acknowledge the real-time collection, storage, use, and disclosure of information on your device or provided by you (such as mouse movements and clicks). We may disclose such information about your use of our website with our social media, advertising and analytics partners. Visit our Privacy Policy and California Privacy Disclosure for more information on such sharing.

Log In

Our Brands

Helpful Tools

Search

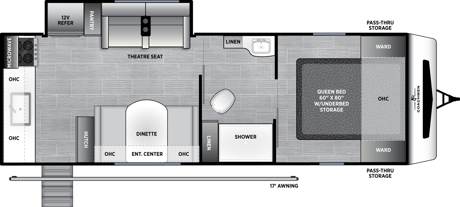
The 245RKS brings a rear kitchen and smart living space to your outdoor getaway. At 28' 5", it supports travelers who want both gear and comfort. Solar ready, a pass-through storage area, and rugged underbelly protection, you can camp off-grid and still cook, dine, and unwind in style.

Hitch Weight
614 lb.
GVWR
7,500 lb.
UVW
5,980 lb.
CCC
1,520 lb.
Exterior Length
28' 5"
Exterior Height
11' 3"
Exterior Width
96"
Fresh Water
52 gal.
Gray Water
35 gal.
Black Water
35 gal.
Awning Size
17'

245RKS Floorplan Ultra Lite Features & Options

    • 3/4 Gel Coated Fiberglass Cap w/ Automotive Glass Windshield
    • Alumicage Construction
    • Two-Step Pinch Rolled and Vacuum Bonded Walls with Azdel Composite (Interior and Exterior)
    • Aluminum Wheels
    • Spare Tire
    • Detachable Power Cord
    • USB Ports
    • Tinted Safety Glass Windows
    • MORryde Aluminum Solid Entry Steps w/ Safety Rail
    • E-Z Lube® Axles Dexter E-Z Lube® Axles
    • Spread Axle Design (N/A 192)
    • Heated/Enclosed Underbelly
    • Full Walk-On Roof
    • Dicor Tufflex PVC Roofing w/Limited Lifetime Warranty
    • Spray Port
    • Winterize Ready Kit
    • Black Tank Flush
    • Microwave Magic Chef Microwave
    • Freedom Solar Ready 200W Solar Panel + 30AMP Controller
    • 24" x 48" Outdoor Table Mounted in Pass Thru Storage (Most Floorplans)
    • 110V / Coax Exterior TV Hook-Up
    • Magnetic Freedom Slam Latch Compartment Doors
    • Battery Disconnect
    • Skylight/Power Vent in Bath
    • Porcelain Toilet
    • 60" x 80" Queen Mattress with Cover (N/A 259 King - 72" x 80")
    • 3" Aluminum Framed Floor with 5/8" Plywood Decking
    • Back-Up Camera Prep
    • Freedom Vaulted Bed Storage (N/A 259, 324 & Select Edition)
    • Front Rock Guard
    • Pet Leash/Bottle Opener
    • Suburban 42,000 BTU Tankless Water Heater
    • GE 15,000 BTU Roof Air Conditioner
    • Bluetooth Interior Speaker / Exterior Speakers
    • Smart TV
    • LED Interior Strip Lighting w/Dimmer Switch
    • Blackout Roller Shades
    • Wear-Resistant Vinyl Flooring Throughout (Carpetless Interior) – Congoleum Flooring
    • Hidden Hinge Cabinetry
    • Kitchen Backsplash
    • Stainless Steel Sink w/ pull down faucet
    • Ducted Furnace and A/C (N/A 192)
    • Magic Chef Gas Cooktop
    • Magic Chef 12V 10 cu. ft. Double Door Refrigerator
    • U-Tensil Drawer Floor plan Dependent
    • 2" Rear Accessory Hitch Prep. 300 lb. Weight Capacity
    • Velarium Velocity Power Awning Switch with LED Light Strip
    • Galvanized Metal Camp Kitchen with Pull-Out U-Tensil Drawer (Floorplan Dependent)
    • Friction Hinge Entry Door
    • 81" Interior Height
    • RVIA
    • Winegard AIR 360+ Amplified Omnidirectional VHF/UHF, FM & WiFi Antenna w/optional 4G LTE Gateway Add-On
    • LP Quick Connect
    • Slide Topper Prepped
    • Power Tongue Jack
    • Griddle and Side Table
    • TPMS
    • Inverter Prep. 3000W
    • Central Vacuum
    • 50 Amp Service with Second Air Conditioner Prep
    • Power Stabilizer Jacks (N/A 192)
    • MEP Fee (REPLACES RVIA)
    • CSA Canadian Compliance
    • Second 15K BTU Roof Air Conditioner Installed