Your privacy is important to us. This website uses cookies to enhance user experience and to analyze performance and traffic on our website. By using this website, you acknowledge the real-time collection, storage, use, and disclosure of information on your device or provided by you (such as mouse movements and clicks). We may disclose such information about your use of our website with our social media, advertising and analytics partners. Visit our Privacy Policy and California Privacy Disclosure for more information on such sharing.

Log In

Our Brands

Helpful Tools

Search

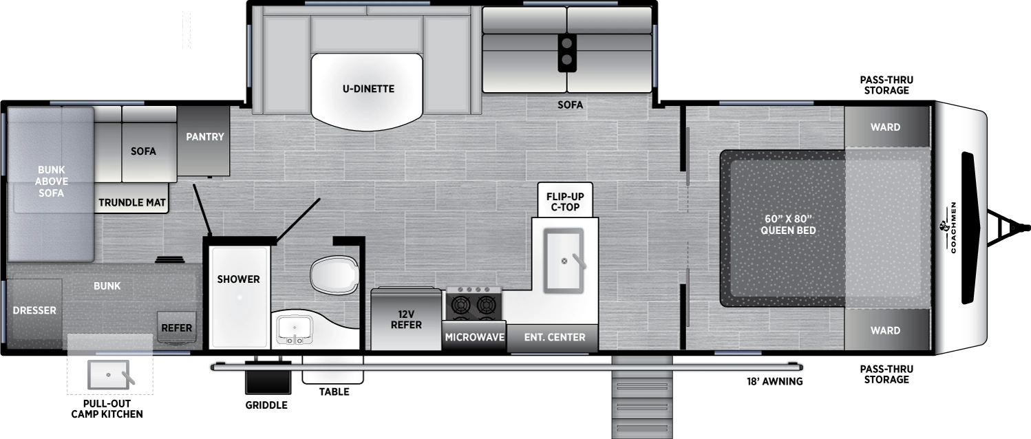
The 300BHDS blends sleeping capacity with lightweight, rugged construction that’s designed for outdoor family adventures. Its bunk-style layout offers space for up to seven, while its Alumicage frame, vacuum-bonded Azdel composite walls, and solar-ready systems support towability and off-grid stays. Built to let you explore remote trails or lakesides with your crew without compromising comfort or capability.

Hitch Weight
TBD
GVWR
TBD
UVW
TBD
CCC
TBD
Exterior Length
TBD
Exterior Height
TBD
Exterior Width
TBD
Fresh Water
TBD
Gray Water
TBD
Black Water
TBD
Awning Size
18'