Your privacy is important to us. This website uses cookies to enhance user experience and to analyze performance and traffic on our website. By using this website, you acknowledge the real-time collection, storage, use, and disclosure of information on your device or provided by you (such as mouse movements and clicks). We may disclose such information about your use of our website with our social media, advertising and analytics partners. Visit our Privacy Policy and California Privacy Disclosure for more information on such sharing.

Log In

Our Brands

Helpful Tools

Search

Wheelbase
TBD
GVWR
14,500 lb.
GCWR
22,000 lb.
GAWR Front
5,000 lb.
GAWR Rear
9,600 lb.
Fuel Capacity
55 gal.
LP Tank Capacity
86 lb.
Exterior Length
32' 11"
Exterior Height
10' 11"
Exterior Width
100"
Interior Height
83"
Fresh Water
48 gal.
Gray Water
34 gal.
Black Water
31 gal.
Awning Size
21'

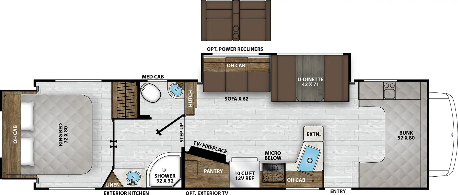
300RS Floorplan Motorhomes Features & Options

    • Residential 80" Length Queen & King Size Beds (N/A on 220XG & 260MB Murphy-Beds)
    • Large 57 x 80" Cab-Over Sleeping Area with Cup Holders & Storage (800 lb. Capacity)
    • 15,000 BTU A/C with Heat Pump (Optional Rear A/C on 260DS, 260MB, 308KB & 319MB)
    • 10cf 12v Refrigerator
    • On-Demand Tankless Water Heater & AquaView Showermiser
    • Max-Length Power Patio Awning with LED Light Strip (15’ through 21’ Lengths)
    • AlphaPly TPO Seamless 1-Piece Roof Material (Lifetime Warranty)
    • Solar Power Prep on Roof – (Optional 200-watt Panel w/ 30-amp Controller)
    • Azdel Composite Sidewall & Cabover Floor Construction
    • CRV Super Springs Ride – Self-adjusting Rear Helper Spring (N/A 220XG & 270QB)
    • Starlink Prep
    • INTERIOR APPOINTMENTS
    • Frinton Bisque Wood Grain
    • Premium One-Piece Thermofoil Countertops
    • Premium Vinyl Flooring
    • Soft-Close Roller Bearing Drawer Guides
    • Pleated Night Shades and Valences
    • Tinted Radius Slider Windows - Safety Glass
    • Single Child Tether at Forward Facing Dinette
    • Jackknife Sofa (270QB, 260DS, 308KB, 300RS, 319MB)
    • Interior Safety Grab Handle at Entrance Door
    • Booth Dinette (270QB, 300RS)
    • Storage Above Entrance Door with HDMI and Charge Station
    • Valet Rod in Closest
    • Coach Décor Wall Mirror (260MB, 319MB, 300RS)
    • INTERIOR EQUIPMENT
    • Winegard Air 360+ TV/FM/AM Antenna
    • LP Leak Alarm
    • Smoke Detector
    • Carbon Monoxide Detector
    • Fire Extinguisher
    • Touch Screen Radio w/Dash Speakers and CarPlay (Ford only)
    • Rear-View Color Backup Camera Monitor
    • Bedroom TV Prep
    • Cable TV, Portable Satellite Dish Exterior Hookup
    • 40" 12V Coach Smart TV
    • HDMI Port for Living Room TV
    • USB Charging Ports
    • GALLEY
    • Microwave Oven
    • 10 cu. ft., 12V Glass Door Refrigerator
    • Top Mount Stainless Steel Farmers Kitchen Sink (N/A 260DS)
    • High-rise Kitchen Faucet
    • Power, Lighted Range Hood
    • Recessed 3-Burner Cooktop w/Cover
    • Kitchen Backsplash
    • Trash Can in Kitchen Base
    • BATH AND WATER
    • Power Bath Vent
    • Single Bowl Lavatory Sink with Single Lever Faucet
    • Premium Shower Head and Faucet
    • Vanity Mirror
    • Roll-Away Shower Door
    • Skylight Over Shower
    • Porcelain Foot Flush Toilet
    • Tankless Water Heater
    • Demand Water Pump
    • Low Point Drain and Winterize Valve at Fresh Tank
    • Exterior Shower
    • SLEEPING
    • Folding King Size Bed - 72" X 80" (300RS, 308KB)
    • Privacy Drape (Lower Cab)
    • Large Cab Over Bunk - 57" X 95" with Storage, Cup Holders and USB ports
    • Telescopic Bunk Ladder
    • ELECTRICAL / HEATING
    • 30 Amp Detachable Power Cord (N/A 260MB)
    • 55 Amp Electronic Converter
    • Auxiliary House Battery
    • Auto Generator Changeover
    • Auto Gen Start
    • NPS 4500 Generator (N/A 260MB)
    • GFI Circuit
    • Wall Mounted Thermostat
    • Propane Furnace
    • 15k BTU Ducted Roof A/C with Heat Pump (260DS, 260MB, 270QB, 308KB, 300RS, 319MB)
    • LED Ceiling Lights
    • Solar Prep at Roof and Entry Door
    • Bed Area with 110V & 12V outlets
    • Bed Area USB Port
    • Systems Command Center
    • Set Up Lights w/ Switch
    • Exterior LP Quick Connect
    • Pop Up Kitchen Recept with USB and Wireless Charging
    • Starlink Prep
    • CHASSIS
    • 55 Gallon Fuel Tank (Ford)
    • Driver and Passenger Air Bags
    • Cruise Control
    • Tilt Steering Wheel
    • Dash Air Conditioning
    • Power Windows and Locks
    • Stainless Steel Wheel Liners
    • Aluminum Running Boards
    • Upgraded Sideview Mirrors
    • 7,500 lb. Towing Hitch (Ford E-450, Chevy 3500)
    • EXTERIOR EQUIPMENT
    • Molded Fiberglass Front Cap w/ LED Lighting
    • Full Aluminum Framed Walls, Roof, Floor Structures
    • Azdel Composite Sidewall and Cabover Construction
    • Vacu-bond Laminated Walls, Roof, and Floor
    • White Fiberglass Walls with Graphics Package
    • Seamless One-Piece Roof Material
    • Steel Entry Stepwell with Auxiliary House Battery Storage
    • Roto-Cast Rear Warehouse Storage Compartment
    • Rear Steel Bumper
    • Upgraded Exterior Safety Grab Handle
    • Power Patio Awning with LED Light Strip
    • Rear Roof Ladder Prep (by Lippert Components)
    • Exterior LED Taillights and Marker Lights
    • Electric Stabilizer Jacks (Optional) (N/A 220XG)
    • Hydraulic Leveling Jacks (Optional) (N/A 220XG)
    • Exterior Entertainment TV Ready Compartment (260DS, 260MB, 308KB, 300RS, 319MB)
    • 1 Year of RV Roadside & Technical Assistance (Specialized Dispatch Services)
    • Slide Out Awning Toppers
    • INTERIOR & EXTERIOR DÉCOR
    • Interior: Magnolia
    • Exterior: Leprechaun Graphics Package
    • Full Body Paint (Optional): Ocean or Murdock
    • EXPLORER PACKAGE (MANDATORY)
    • Back-Up Camera
    • Molded Fiberglass Front Cap
    • Solar Panel Connection Ports at Sidewall and Roof
    • LP Quick Connect
    • Power Patio Awning with LED Light Strip
    • 7,500 lb. Towing Hitch (Ford E-450, Chevy 3500)
    • Roto-cast Rear Warehouse Storage Compartment
    • Exterior Shower
    • Black Tank Flush
    • Heated Holding Tanks
    • Slide Out Awning Topper(s)
    • 1 Year of RV Roadside & Technical Assistance (Specialized Dispatch Services)
    • CarPlay/Android Auto Dash Radio (N/A Chevy Chassis)
    • Rearview Mirror Backup Monitor
    • 40" Living Room 12V Smart TV
    • Even-Cool A/C Ducting System (N/A 220XG, 230FS)
    • Cab Over Bunk Ladder
    • 15,000 BTU A/C with Heat Pump
    • 10 cu. ft. 12V Refrigerator
    • Tankless Water Heater
    • CRV SUPERSPRINGS RIDE (MANDATORY - N/A 220XG, 270QB)
    • SumoSpring Front Shock Absorbers
    • SuperSpring Rear Self-Adjusting Helper Spring
    • Chassis Electronic Stability Control
    • Dynamic Balanced Driveshaft System
    • Heavy Duty Front and Rear Stabilizer Bars
    • ESCALADE PACKAGE (OPTIONAL - N/A CHEVY CHASSIS)
    • Heated Mirrors
    • Dual Batteries
    • 5G/WiFi Booster
    • Convection Oven
    • Kitchen Faucet with Spray Head
    • Child Safety Net in Cabover
    • Cab Over and Bedroom Power Vent Fan with Maxxair Cover
    • Upgraded Running Boards
    • Leatherette Cockpit Seat Covers
    • Side View Cameras
    • OPTIONAL EQUIPMENT
    • Dual Power Recliners (260DS, 308KB, 300RS, 319MB)
    • Driver/Passenger Swivel Seats, Windshield Cover (N/A 270QB)
    • Solid Surface Kitchen Countertops w/ Under Mount Stainless Steel Sink & Covers (260DS, 260MB, 308KB, 300RS, 319MB)
    • Exterior Entertainment Center w/ 32" 12V TV & Bluetooth Soundbar (260DS, 260MB, 308KB, 300RS, 319MB)
    • 32" Bedroom TV (308KB, 300RS)
    • Exterior Camp Kitchen Table with Mini Refrigerator (300RS, 319MB)
    • Dual A/C - 15,000 BTU Ducted Front with Heat Pump & 11,000 BTU Non-Ducted Rear (N/A 220XG, 230FS, 270QB)
    • Equalizer Stabilizer Jacks (N/A 220XG)
    • Hydraulic Leveling Jacks (N/A 220XG)
    • 200W Roof Mounted Solar Panel with 30 Amp Controller and Dual AGM Group 24 Battery
    • Exterior Water Panel w/ Black Tank Flush